1 izbový byt 2G

Predaj, 1 izbový byt, Kostolište, Novostavba

Cena 108.998

Údaje nehnuteľnosti

  • Rezervovaný
Druh ponuky: Predaj
Mesto/obec: Kostolište
Druh nehnuteľnosti: 1 izbový byt
Stav nehnuteľnosti: Novostavba
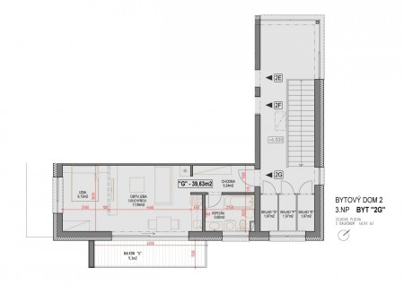
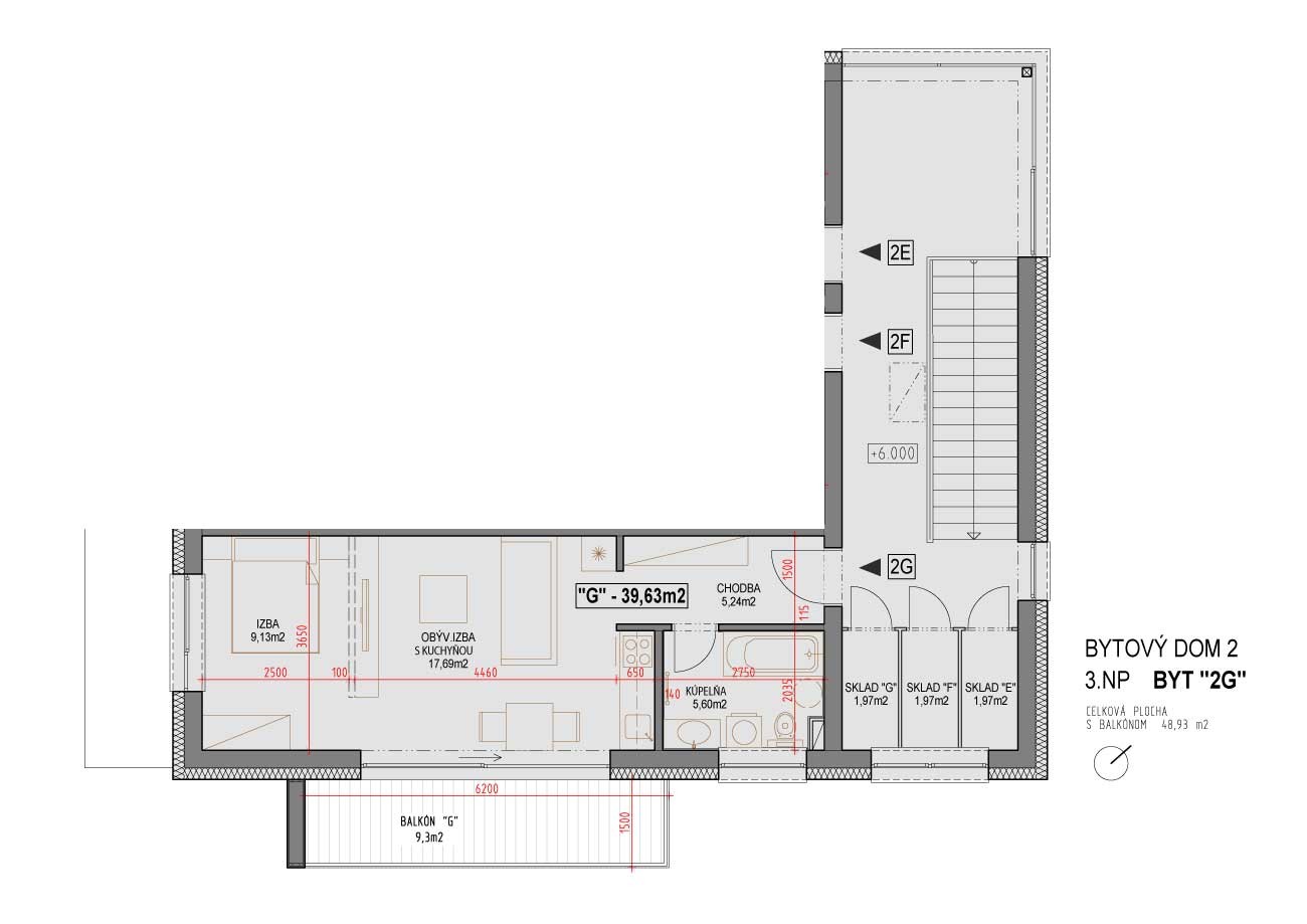
Úžitková plocha: 39.63 m 2
Poschodie: 2
Katalógové číslo: 2G
id: 47

Popis nehnuteľnosti:

Ponúkaná nehnuteľnosť sa nachádza v novovybudovanej lokalite v okrajovej časti obce. Nová moderná lokalita "Šutrovňa" sa nachádza pri Jakubovskej ceste, v tesnej blízkosti zmiešaných lesov, ale zároveň len pár minút autom či bicyklom od okresného mesta Malacky. Zastávka MHD, ktorá spája obec s okolitými dedinami, mestom Malacky a Bratislavou, sa nachádza v pešej dostupnosti.

V spomínanej lokalite prebieha výstavba 6 rovnakých nízkonákladových bytových domov. V lokalite taktiež bude malá komunitná kaviareň, detské ihrisko a tiež novovybudovaná materská škola typu montesori.

Celková plocha s balkónom je 48,93m2.

Parkovanie je samostatné spoplatnené a jedno parkovacie miesto je povinné, cena je 5000 eur.

Byty v štádiu holobyt:

- zateplenie fasády 200 mm, AUSTROTHERM / ISOVER EPS 70 F

- elektrické podlahové kúrenie, samoregulačná infra fólia s termostatickým ovládaním pre každú izbu

- elektrický bojler na TÚV (100L)

- inštalačný modul závesného WC ALCAPLAST / GEBERIT

- elektroinštalácia ukončená zásuvkami, vypínačmi LEGRAND alebo obdobné

- okna a dvere plastové SLOVAKTUAL OPTIM

- Kvalitné bezpečnostné vstupné dvere do bytu

Vizualizácia 3D

Maklér

IBV Kostolište

+421 34 772 2019

[email protected]

Vytlačiť ponuku

Kontaktný formulár

* - povinný údaj
Vaše údaje zadané do kontaktného formulára budú odoslané spoločnosti ID Projekt s.r.o.. Bližšie informácie k ochrane osobných údajov nájdete tu.

Fotografie nehnuteľnosti: